一座城,帶來對片區改變的能力很大,是片區蛻變的加速器,也是承載片區美好生活的容器。深圳中軸85萬㎡無界生活大城盛薈城營銷中心、樣板間驚艷綻放同步開放,位于盛薈城營銷中心一樓的大浪城市展廳更是讓人眼前一亮。

如果說可持續性延續城市記憶和生命,是城市更新的重要意義,那么從時間維度講述大浪城市故事,從空間維度描繪大浪產、城、人和諧共生的大浪城市展廳,恰如一個城市記憶坐標,不僅豐富地呈現了龍華大浪的底蘊和煥新,同時還賦能盛薈城這個片區首屈一指的大型城市更新項目更多人文氣息和生活價值。

大浪城市展廳分為涌立潮頭、潮起共生、城市煥新、逐浪前行、時尚生態與5G浪潮六大主題,以城市共建角度暢想大浪城市的未來樣貌。
設計方案
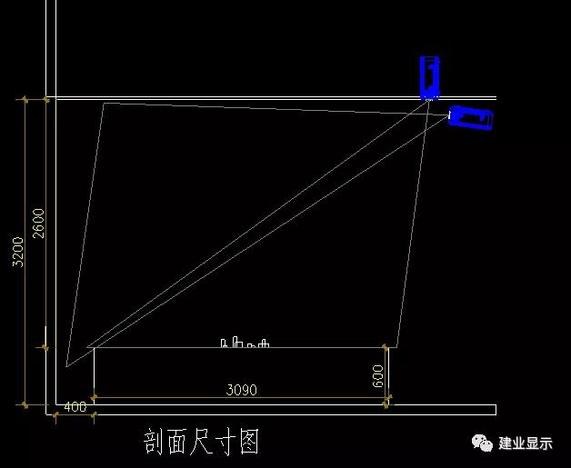
展廳中影音室弧幕使用2臺麗訊6500流明激光全高清投影機,呈現一幅寬8米高2.6米的視頻畫面,分辨率高達3428*1114Pix,電子沙盤則使用1臺麗訊5500流明激光全高清投影機,投影畫面寬5.2高3.25米,畫面精美,色彩表現豐富,簡述大浪片區不斷變革的發展歷程。





成果展示




VIVITEK:龍華大浪城市展廳
免責聲明:本文圖文素材來源于vivitek麗訊,本文僅代表作者個人觀點,本站不作任何保證和承諾,若有任何疑問,請與本文作者或提供稿件商家聯系。如涉及到侵權,請聯系我們及時刪除。